Ref.
Search
Property Type
In
Location
Rooms
Bathrooms
Features
Price

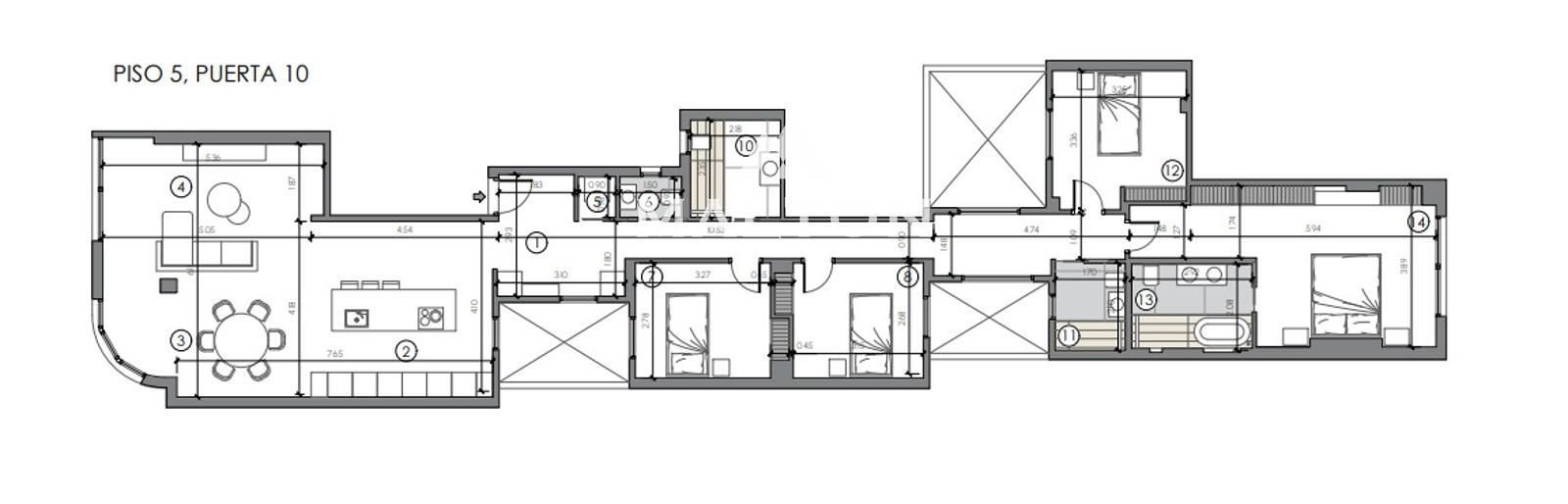
Flat for sale in Valencia (L'Eixample) (ref.2749)

 169 m2 |  4 |  3 |  5 |
sale: 990,000 €
Ref. 2749 |  169 m2 |  4 |  3 |  5 |
sale: 990,000 €

Flat for sale in Valencia (L'Eixample)

Flat for sale in Valencia, with 169 m2, 4 rooms and 3 bathrooms and Lift.
Construction year 1941
Constructed area 169 m2
Price/sq.m. 5,858
Bedrooms 4
Bathrooms 3
Furnished Kitchen
Floor/Height 5
Lift
Energy Rating In process
The address of the property is approximate.

Similar properties:

 
 156 m2  3  2
Flat for sale in Valencia, with 156 m2, 3 rooms and 2 bathrooms, Swimming pool, 2 Garage space, Storage room, Lift, Furnished and Air conditioning.
850,000 €
 
 205 m2  4  2
Flat for sale in Canet D'En Berenguer, with 205 m2, 4 rooms and 2 bathrooms, Swimming pool, Garage, Storage room, Lift and Air conditioning.
800,000 €

For more information about this property, please fill out the form:

If you want to calculate your mortgage, fill in the form:

%
years
Calculate
MALTON HILLS S.L.
Av. Cortes Valencianas 26, Bloque 1, Esc. 1, Ofic. 6
46015 – Valencia

960088872 - 608403305