Ref
Busco
Tipo
En
Zona
Habitaciones
Baños
Características
Precio

Vivienda en Ruzafa (ref.2785)

 65 m2 |  3 |  1 |
venta: 285.000 €
Ref. 2785 |  65 m2 |  3 |  1 |
venta: 285.000 €

Vivienda en Ruzafa

Calle tranquila en Ruzafa y con 3 habitaciones exteriores!

En la zona con mas revalorización y demanda actual presentamos este fabuloso inmueble totalmente EXTERIOR con mucha luz natural y edifico con la IEE FAVORABLE y vigente hasta 2032.

Con posibilidad de poner ascensor por espacio en el patio

Gracias a sus características y versatilidad esta vivienda es perfecta para vecinos del barrio o dedicado al alquiler por habitaciones: 3 habitaciones exteriores con grandes ventanas climalit a medida, instalación de 2 aires acondicionados en uso, techos altos y totalmente en uso. se puede negociar la compra hasta con todo el equipamiento actual!

Con una envidiable ubicación os presentamos esta oportunidad en ruzafa. 2 planta SIN ascensor.

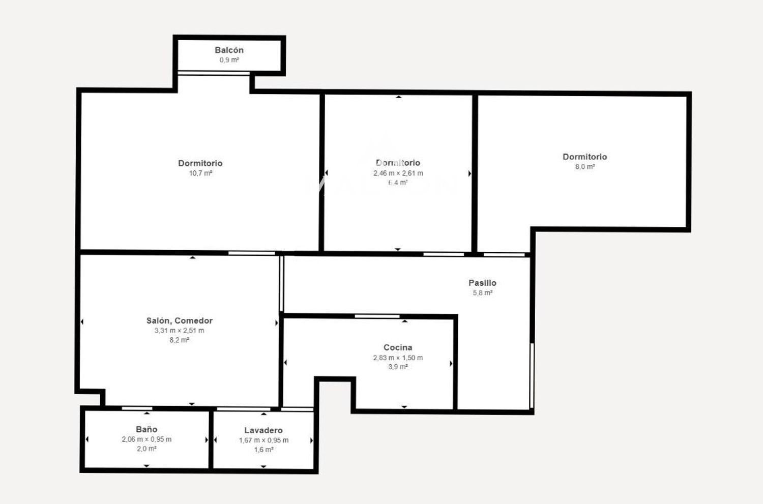
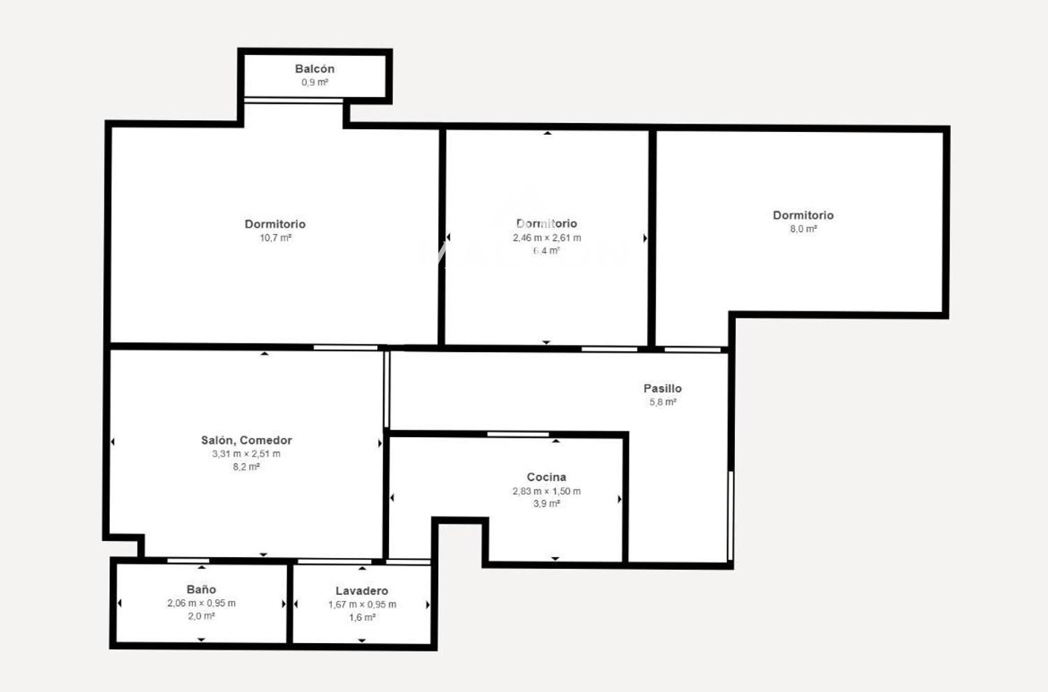
DESCRIPCIÓN:

Conforme entras nos encontramos un recibidor con un justo pasillo para distribuir a mano derecha todas las habitaciones exteriores a la misma calle, y a mano izquierda la cocina comedor y baño. El piso cuenta con dos A/C frío calor! ubicados en el pasillo y comedor

Todas las habitaciones son de un tamaño considerable aportando homogeneidad a una futura convivencia, además de tener muchísima luz natural e inclusive en una de ellas salida a un balcón.

Dos de las habitaciones cuentan con cama individual y armario, además una de ellas cuenta con escritorio hecho a medida. Ambas son exteriores y tienen ventanas climalit para evitar entradas de diferentes temperatura o ruido. La habitación de matrimonio, posee dos camas individuales y un gran armario empotrado, también exterior a la calle a través de un pequeño balconcito
La cocina es discreta y muy bien equipada, hasta con el lavavajillas individual encajado y nevera seminueva. Cuenta con horno y cocina de gas y mucho espacio de almacenaje bien aprovechado
La distribución del comedor es cuadrada, de forma que tenemos un espacio libre para ubicar el sofá y justo enfrente la TV, y a los lados dos ventanas grandes que aportan luz y ventilación cruzada. Además, en una de ellas hay un espacio de lavadero, que incluso se puede aprovechar para hacer una cocina office o un segundo baño. 1 aire acondicionado


No esperes más a visitar esta propiedad no durará mucho tiempo...


Construidos 65 m2
Útiles 61 m2
Repercusión m² venta 4.385
Dormitorios 3
Baños 1
Ascensor
Aire acondicionado
Calificación Energética En trámite

Inmuebles similares:

 
 111 m2  1  2
Piso en venta en Burjassot, con 111 m2, 1 habitaciones y 2 baños, Piscina, Garaje, Trastero, Ascensor y Aire acondicionado.
260.000 €
 
 66 m2  2  2
Piso en venta en Valencia, con 66 m2, 2 habitaciones y 2 baños y Amueblado.
240.000 €

Si desea más información sobre esta propiedad, por favor, rellene el cuestionario:

Si desea calcular su hipoteca, rellene el formulario:

%
años
Calcular
MALTON HILLS S.L.
Av. Cortes Valencianas 26, Bloque 1, Esc. 1, Ofic. 6
46015 – Valencia

960088872 - 608403305