Ref
Busco
Tipo
En
Zona
Habitaciones
Baños
Características
Precio

Piso reformado en Cirilo Amorós (ref.2745)

 150 m2 |  3 |  2 |  1 |  5 |
venta: 800.000 €
Ref. 2745 |  150 m2 |  3 |  2 |  1 |  5 |
venta: 800.000 €

Piso reformado en Cirilo Amorós


Vivienda reformada en el corazón del Pla del Remei – Valencia

Se vende espectacular piso de 150 m² completamente reformado, situado en una de las zonas más demandadas de Valencia: el Pla del Remei, a pocos pasos del Mercado de Colón y rodeado de todos los servicios.

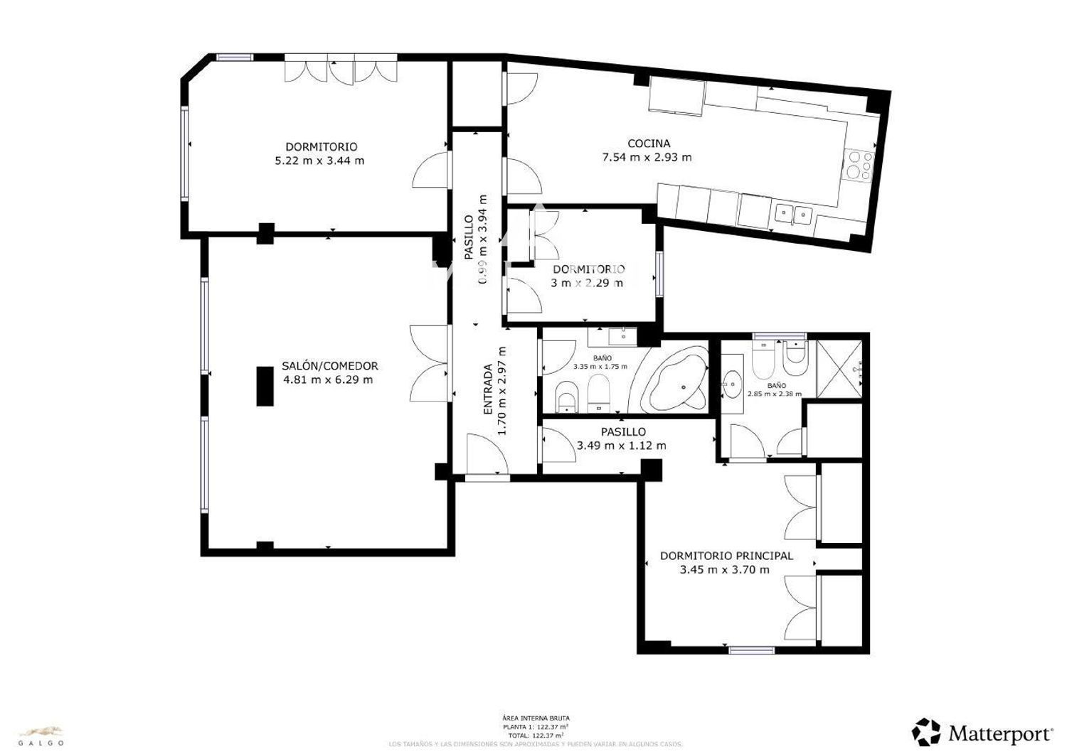
La vivienda, ubicada en una quinta planta con ascensor, destaca por su luminosidad, amplitud y excelente distribución.
Dispone de una habitación principal con baño en suite y sauna privada, una habitación doble, una habitación sencilla y un baño completo adicional.
El gran salón-comedor ofrece un espacio ideal para disfrutar en familia, mientras que la cocina independiente y amplia está equipada para el máximo confort.

La vivienda cuenta con calefacción de gas natural y aire acondicionado por splits, carpintería lacada en blanco y suelos de gres.

Además, cuenta con trastero.

El piso está listo para entrar a vivir, sin necesidad de reformas.


150 m² construidos

3 habitaciones, 2 baños

Trastero

Construido en 1948

5ª planta con ascensor

Zona: Pla del Remei

Construidos 150 m2
Repercusión m² venta 5.333
Dormitorios 3
Baños 2
Trastero
Altura/Planta 5
Ascensor
Aire acondicionado
Calificación Energética En trámite

Inmuebles similares:

 
 117 m2  4  2
Piso en venta y alquiler en Valencia, con 117 m2, 4 habitaciones y 2 baños, Ascensor y Aire acondicionado.
2.700 €/mes
760.000 €
 
 156 m2  3  2

Situada en una 2ª planta CON ASCENSOR y en un edificio con residencial de reciente construcción (año 2020), cuenta con 156 m2 construidos que se distribuyen en 3 espaciosas habitaciones (2 dobles y 1 individual) y 2 baños completos (uno en suite). Salón amplio y luminoso.

850.000 €

Si desea más información sobre esta propiedad, por favor, rellene el cuestionario:

Si desea calcular su hipoteca, rellene el formulario:

%
años
Calcular
MALTON HILLS S.L.
Av. Cortes Valencianas 26, Bloque 1, Esc. 1, Ofic. 6
46015 – Valencia

960088872 - 608403305