Presentamos esta maravillosa propiedad de típica construcción valenciana propia de la Ribera Alta, totalmente rehabilitada y que perfectamente podría definirse como un proyecto perfecto a desarrollar sobre una magnífica y trabajada base constructiva. Vistas, luz, espacios abiertos, jardín privado de aproximadamente 4.000 m2 con una colección de más de 80 variedades de árboles de todo el mundo, campo de naranjos en plena producción, pozo de agua propio, excelente acceso, cercanía a los servicios, y un largo etcétera que configuran la lista de características que podrían empezar a definir esta propiedad, considerada como un producto casi único en un entorno tan valorado en esta comarca valenciana, asentada sobre un terreno fértil, llano, verde y repleto de agua.
La construcción principal con sus dos puertas principales a este y oeste, casi pegada ala gran balsa-piscina donde se reflejan las construcciones consiguiendo la mejor de las fotos, alberga tres plantas distribuidas en algo más de 500 m2 e incluyendo terrazas cubiertas y descubiertas. Toda la estructura, tejado y cerramientos exteriores de la casa están rehabilitados y en perfecto estado, listo para soñar la distribución interna ideal donde desarrollar un proyecto de vida difuminado en plena naturaleza y campos de cítricos.
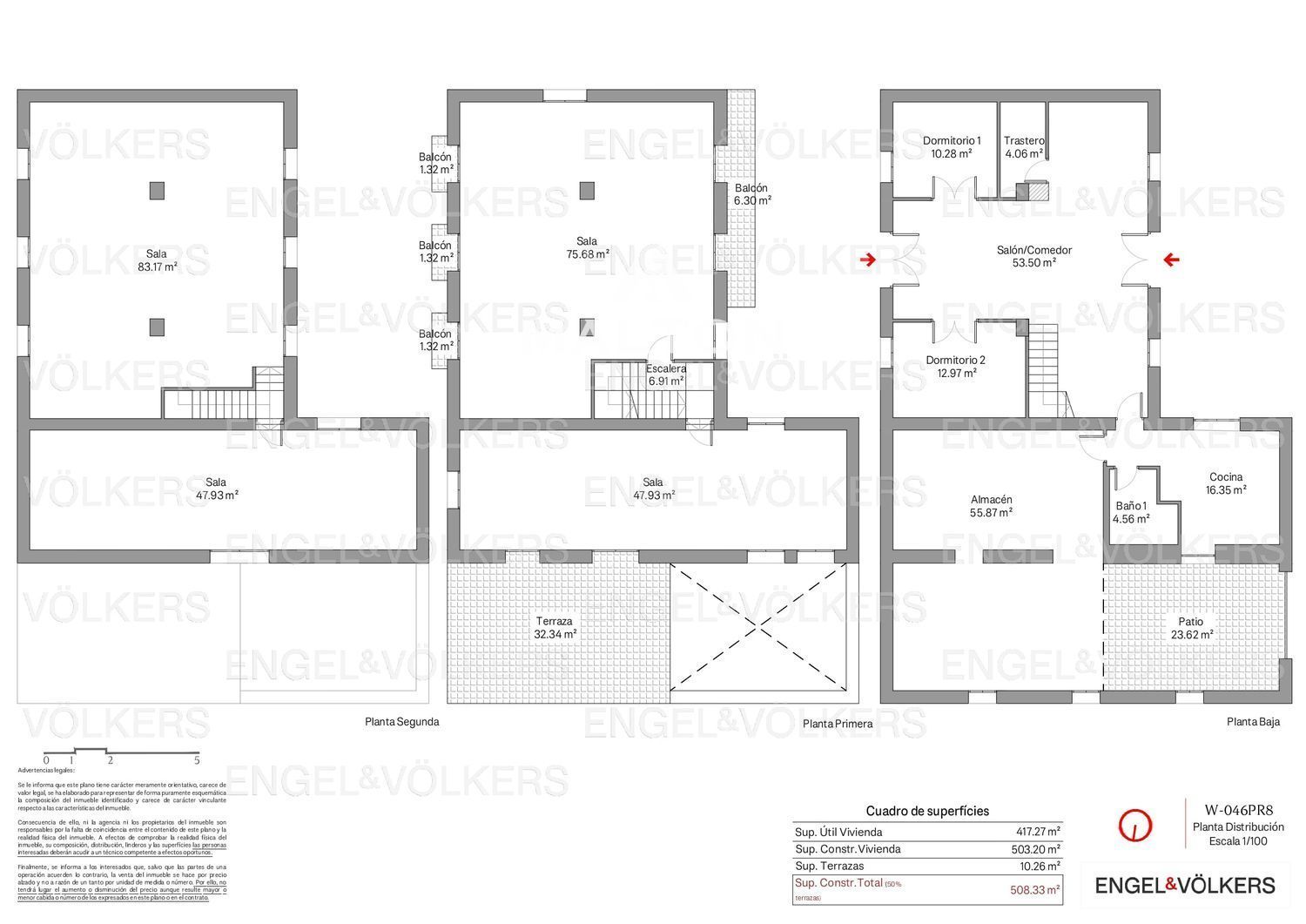
La planta baja alberga un inmenso salón principal con estufa de leña, cocina de estilo rústico con azulejos valencianos, un baño completo con ducha, dos dormitorios dobles y un acceso a un patio interior-garaje con una zona cubierta.
La planta primera totalmente diáfana está separada en dos áreas rectangulares con sus vigas de madera restauradas, grandes ventanales de aluminio y una terraza con preciosas vistas al jardín personalizado y al campo. En esta planta fácilmente podrían distribuirse entre 4 y 6 dormitorios de buen tamaño.
La planta segunda abuhardillada también con vigas de madera, se encuentra asimismo diáfana y ofrece un sinfín de posibilidades, como un amplio y luminoso salón, con una luz impresionante y un ambiente acogedor.
El exterior de la propiedad con naranjos, la balsa, rincones diferentes llenos de vegetación, un horno moruno y barbacoa, un pequeño porche con vegetación y mucho espacio para dar rienda suelta a la imaginación para desarrollar terrazas, zonas de recreo y sobre todo el sueño de alejarse del ruido y el tráfico a una distancia mínima del centro de la ciudad de Carcaixent.
Esta preciosa casa de campo o huerto valenciano está ubicado en la parte más noble de la zona rústica de Carcaixent, rodeada de otras imponentes casas históricas de la zona de la Ribera Alta y cuyo acceso asfaltado y adoquinado según tramos, es muy accesible. Dista tan sólo 2'5 km del centro urbano y perfectamente se podría realizar el recorrido en bici, a pie o en coche, dado que se trata de una zona llana y sin dificultosas cuestas.
Chalet independiente
3 plantas
667 m² construidos
5 habitaciones, 1 baño
Parcela de 22.245 m²
Construido en 1922
No dispone de calefacción
Zona: Carcaixent